Moderno novouređeni te renoviran stan na idealnoj lokaciji u visokom prizemlju s besplatnim javnim parkingom.
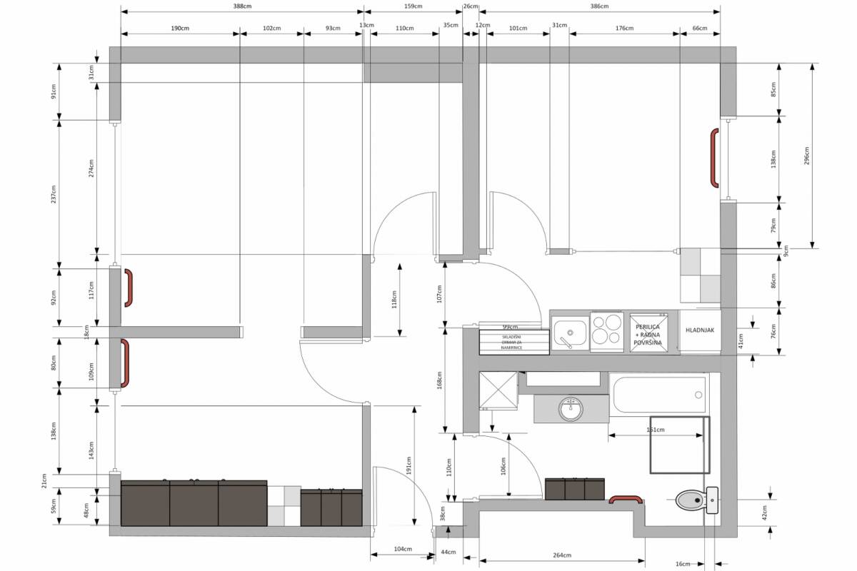
Veličina stana je 63,81 m2, sa spremištem u podrumu, površine 3,51 m2, ukupne površine 67,32 m2
Preko puta ceste se nalaze trgovine, crkva, kafići, prometnice koje spajaju glavne smjerove prema Zagrebu, u blizini je i stanica za bus, park za djecu i pse.
Stan je smješten u visokom prizemlju, s prozorima koji gledaju na istok i zapad. Parking oko zgrade je javan i besplatan. Zgrada ima lift. Beton Gradnja, 1996. g. , zidovi su od armiranog betona što jamči čvrstoću i sigurnost a izolacija je jako dobra.
Gotovo sve u stanu je novo i renovirano. Nova ulazna protuprovalna vrata koja se mogu otključavati s mobitelom, pinom, ili otiskom prsta ali i ključem ako to preferirate. Prozori su ugrađeni novi najviše kvalitete izrade i izolacije u sivoj boji sa zlatnim kvakama, ugrađenim komarnicima i roletama. Klupice ispod prozora su od mramora. Novi radijatori za topao i ugodan boravak zimi. Grijanje je preko toplane. U svakoj sobi je novi kvalitetni Daikin klima uređaj (3 komada) koji se može koristiti za hlađenje ili grijanje a ima i wifi upravljanje preko aplikacije. U stan je proveden optički kabel za internet a infrastruktura je u vlasništvu Hrvatkog Telekoma. Moguće je uzeti i od drugog operatera preko iste infrastrukture. Novi strujni ormar.
Kupaona je kompletno nova sa kvalitetnom brend opremom iz Feroterma. Velike crno zlatne pločice u imitaciji maramora, zlatne pipe, posebno kada i walk in tuš. Led rasvjeta ugrađena u police u zidu. Spot svjetla + glavno svjetlo. Perilica rublja i sušilica ugrađeni na policu po mjeri. Ormarići po mjeri kako bi se maksimalno iskoristio prostor. Topla voda ide preko toplane. Kromirani okomiti radijator.
U hodniku premium zlatne tapete uz sjajne bijele pločice i veliko zlatno ogledalo. Strop je obučen u umjetno zelenilo. Spot svjetla koja se uključuju jedno po jedno na senzor. Mali zvučnik koji je također i u svakoj drugoj prostoriji kako bi mogli slušati glazbu u cijelom stanu bez da bude glasna.
Kuhinja izrađena po mjeri kako bi se maksimalno iskoristio prostor. Hladnjak ugađen u ormar. Pećnica, perilica suđa, indukcijska ploča, ventilacija. Izrađen je šank u sklopu zida koji se može koristiti spojeno sa sobom 2 ili odvojiti na način da se spuste rolete i zatvore vrata.
Soba 1 je obučena u plave Njemačke premium tapete iz Tepihlanda, te ima veliki klizni ormar preko cijele strane zida izrađen po mjeri plus policu za knjige i sitne stvari. Na drugoj strani uz strop su ugrađeni ormarići po mjeri u koje se mogu skladištiti dodatne stvari koje se ne koriste svaki dan. Pod je smeđi laminat. Soba 1 je povezana kliznim vratima sa dnevnim boravkom. Na zidu je priprema za televizor. Prozor gleda prema unutrašnjosti dvorišta od zgrade tako da nema buke od prometa.
U dnevnom boravku su zidovi obučeni u kombinaciji plavih tapeta i drvenih akustičnih letvica koje vizualno oblikuju prostor i stvaraju ugodan zvuk. Pod je smeđi laminat. Svjetlo ima glavno led te uz zid spot svjetla za moody ambijent. Na zidu je priprema za televizor. Iznad vrata je ugradbeni ormar po mjeri u kojem se nalazi internet, ostala tehnologija i prostor za alat. Prozor također gleda prema unutarnjem dvorištu zgrade. Ispod prozora se nalazi mali travnjak uz koji se može sjesti na mali stolić za jutarnju kavu ili popodnevni boravak na zraku.
Soba 2 ima smeđe obojane zidove i nedavno brušen i lakiran parket. Spojena je s kuhinjom ali može se odvojiti s vratima i roletama iznad šanka. Prozor gleda prema parkingu.
Spremište se nalazi odmah ispod stana sobe 1 te je čisto i uredno. Linoleum na podu, zidovi obloženi drvenim pločama i dekorativnim naljepnicama kao tapete. Mnogo skladišnog prostora. U zgradi je i zajednički prostor za bicikle koji se zaključava.
Moguć obilazak putem videopoziva ili dogovor termina za dolazak uživo. Moguća kupnja pomoću kredita, ili jednokratno. Stan se koristi tako da je potrebno prijelazno razdoblje za transport stvari.
Molim da me ne kontaktirate ako ste agencija za prodaju nekretnina, hvala.
Više fotografija: https://filip-cacija.iz.hr/prodaja-stana-velika-gorica
Kontakt: 098 94 74 505 (Filip)